Wohnen auf dem Lindenhof
Im beliebten Mannheimer Stadtteil Lindenhof entsteht ein zeitgemäßes Wohnensemble mit mehreren Gebäuden, das durch beständige Ästhetik, Modernität, Nachhaltigkeit und hohe Wohnstandards überzeugt.
Das Neubauprojekt umfasst 134 barrierefreie Mietwohnungen und setzt mit seiner klaren Architektur, der eleganten Fassadengestaltung und den bodentiefen Fensterflächen einen modernen, urbanen Akzent. Großzügige Lichteinfälle schaffen helle Räume und eine einladende Wohnatmosphäre mit hohem Wohlfühlfaktor.
Jede Wohnung verfügt über eine Loggia oder Terrasse. Die zeitgemäße Ausstattung, die Verwendung hochwertiger Materialien und die durchdachte Detaillierung stehen für ein Wohnumfeld auf hohem Niveau. Die Bezugsfertigkeit ist voraussichtlich zum 01. Februar 2026 gegeben. Die Bauweise erfüllt die Anforderungen des KfW-55-Energieeffizienzstandards und unterstreicht den nachhaltigen Charakter des Projekts.
Lage:
Die Qualität der Wohnanlage wird durch eine großzügig gestaltete, begrünte Innenhofanlage hervorgehoben, die den Bewohnerinnen und Bewohnern Ruhe und Erholung mitten in der Stadt bietet.
Die Lage überzeugt durch kurze Wege zu öffentlichen Verkehrsmitteln, Einkaufsmöglichkeiten und das nahe gelegene Waldpark- und Rheinufer-Naherholungsgebiet.
Alle Gebäude erfüllen die aktuellen Schallschutzanforderungen und sind mit einer energieeffizienten Be- und Entlüftungsanlage ausgestattet. Die barrierefreie Gestaltung aller Wohnungen macht das Ensemble gleichermaßen attraktiv für ältere Menschen, Familien und Paare – kurz: für Menschen, die urbanes Wohnen mit Komfort und Qualität verbinden möchten.
Ausstattung im Überblick
- 2 bis 5-Zimmer-Wohnungen zwischen 57 – 147qm
- moderne Grundrisse
- barrierefrei
- Raumhöhen von ca. 2,65 m
- Terrasse oder Loggia
- warme Eichenparkettböden in den Wohn- und Schlafräumen
- lichtdurchflutete Räume durch große Fenster
- moderne Kunststofffenster mit 3-fach-Isolierverglasung
- Fußbodenheizung
- Wärmedämmung
- teilweise elektrische Außenjalousien
- Türsprechanlage mit Videokontrollsystem
- jede Wohnung verfügt über einen Kellerraum
- Fahrradabstellplätze
- Abstellraum für Kinderwagen
Grundrissbeispiele
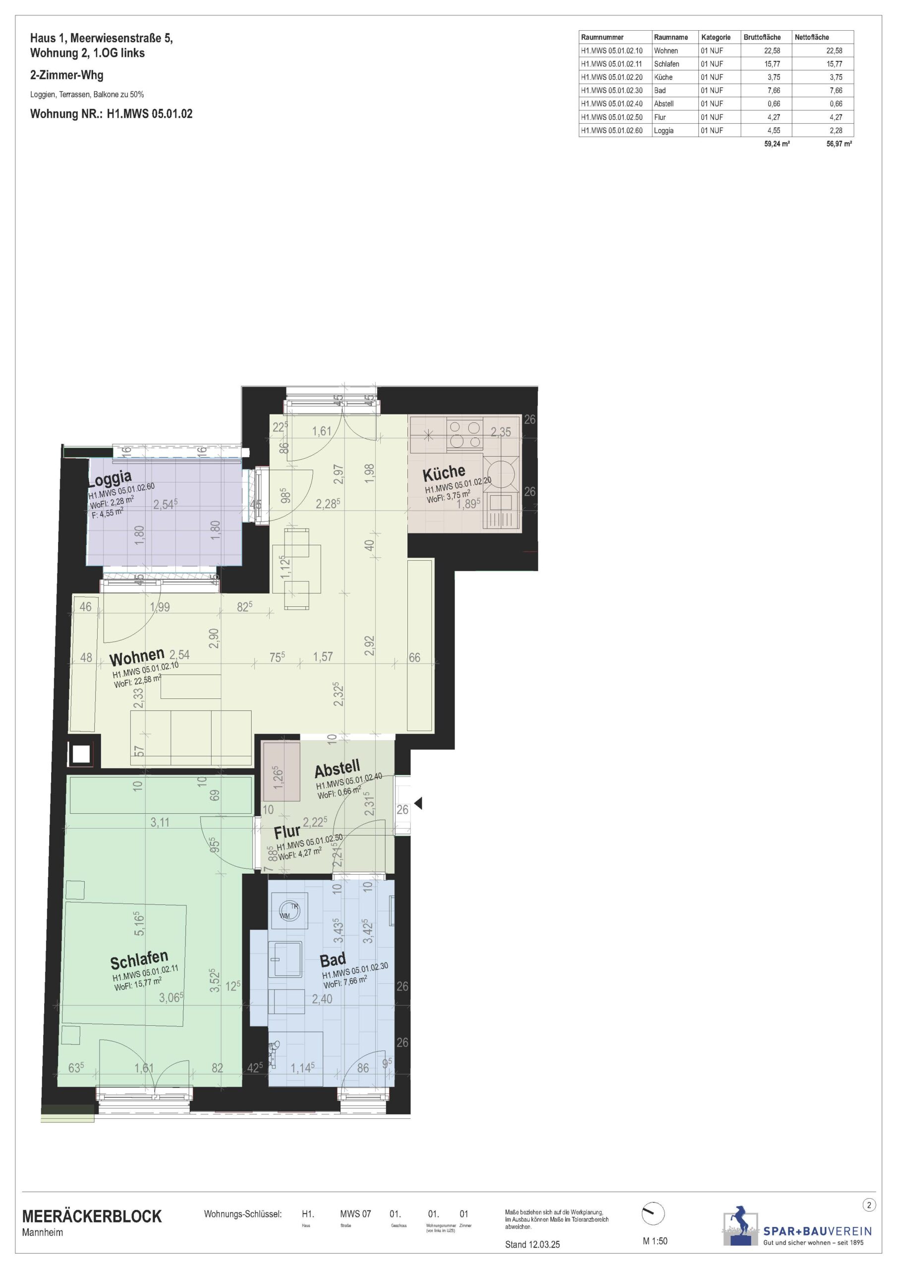
- 2 Zimmer Whg.
- 2 Zimmer Whg.
- 3 Zimmer Whg.
- 3 Zimmer Whg.
- 3 Zimmer Whg.
- 4 Zimmer Whg.
- 4 Zimmer Whg.
- 5 Zimmer Whg.
Ihre Ansprechpartnerin
Fr. Wegerle
Telefon: 0621/ 12733 – 16
E-Mail: wegerle@spar-bau-ma.de
